Build Your Dream Barndominium
Custom floor plans, steel frame construction, 40-60% less than traditional homes. Builders and kits delivered nationwide.
Free, No-Obligation Quote
Custom pricing for your barndominium project
Completely Free • No Obligation
Barndominiums for Every Lifestyle
New Build
Custom-designed barndominium built from scratch on your property
Barndo Kits
Steel frame kits shipped to your site - finish it yourself or hire a crew
Floor Plans
Browse and customize barndominium floor plans for every lifestyle
Shell Only
Steel frame, roof, and exterior - you handle the interior finish
Turnkey Build
Move-in ready barndominium with full interior finishes included
Shop + Living
Combined workshop and living space under one steel roof
Completely Free • No Obligation
How It Works
Design Your Barndo
Choose your floor plan, size, and finish level. Our team helps you design the perfect barndominium for your property.
Get Your Free Quote
Receive a custom quote from qualified builders and kit suppliers - no middleman markup, no hidden fees.
Build & Move In
Your barndominium is built on your property and move-in ready in 8-12 weeks - not 6-12 months like traditional homes.
Explore Your Options
Barndominium Builders
Find qualified barndominium builders in your area for custom new construction.
Learn More →
Barndominium Kits
Steel frame barndominium kits shipped direct to your property.
Learn More →
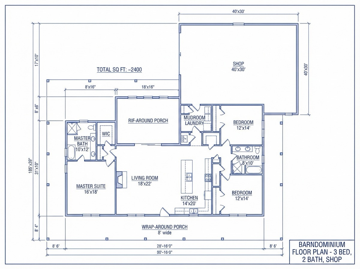
Barndominium Floor Plans
Browse and customize barndominium floor plans for every lifestyle.
Learn More →
Barndominium Cost
Barndominium cost breakdown - pricing per square foot, kits, and turnkey builds.
Learn More →Why Choose Love Barndominiums
Custom Floor Plans
Every barndominium is designed to your specifications - open concept, shop space, loft, or multi-level.
Steel Frame Construction
Built on a durable steel frame that resists rot, termites, and fire for decades.
40-60% Less Than Traditional
Barndominiums cost 40-60% less per square foot than traditional stick-built homes.
Energy Efficient
Steel frame + spray foam insulation = lower energy bills year-round with superior thermal performance.
Quick Build Time (8-12 Weeks)
Most barndominiums are move-in ready in 8-12 weeks - not 6-12 months like traditional construction.
Serving Nationwide
Our network of qualified barndominium builders and kit suppliers delivers anywhere in the US.
Serving Your Area
Love Barndominiums connects property owners with qualified barndominium builders and kit suppliers nationwide. Custom floor plans, steel frame construction, and turnkey builds available in all 50 states.
Find Barndominium Builders in Any State
Barndominium Builders by State
Barndominium Kits & Plans
Barndominium Cost & Financing
What Our Clients Say
“We built our dream barndo on 5 acres in Texas. Open concept living with a 40x60 shop attached. Best decision we ever made.”
“Ordered a barndominium kit and had it delivered in 3 weeks. The steel frame went up in days and we were under roof before the next storm season.”
“The floor plan customization was amazing. We got exactly the layout we wanted - 3 bed, 2 bath with a full workshop. Came in under budget too.”
Frequently Asked Questions About Barndominiums
How much does a barndominium cost?
Barndominium costs range from $65-$160 per square foot depending on size, finish level, and customization. A shell-only barndo starts around $50,000-$80,000 for 2,000 sq ft. Turnkey builds average $130,000-$320,000. Get a free custom quote for exact pricing.
How long does it take to build a barndominium?
Most barndominiums are move-in ready in 8-12 weeks from foundation pour to final finishes. Steel frame erection takes just 3-5 days. Love Barndominiums connects you with builders who prioritize fast turnaround.
Do I need a permit for a barndominium?
In most areas, yes - a building permit is required for barndominium construction. Requirements vary by state, county, and municipality. Our builders can provide engineered drawings that meet your local building code requirements.
Can I get a mortgage on a barndominium?
Yes. Several lenders now offer barndominium-specific construction loans. USDA, FHA, and VA loans may also apply. Our builders can recommend barndo-friendly lenders in your area.
What is the difference between a barndominium and a pole barn?
A barndominium is a steel-framed building designed for residential living - with full insulation, plumbing, electrical, and interior finishes. A pole barn is typically a post-frame agricultural building. Barndominiums offer superior energy efficiency and living comfort.
How big can a barndominium be?
Any size you want. Barndominiums range from compact 1,200 sq ft homes to sprawling 5,000+ sq ft estates with attached shops. Every build is custom engineered to your specifications.
Are there any fees to get a quote?
No. Our service is completely free. Love Barndominiums earns its fee from the builders - you never pay us anything.
Get Your Free Barndo Quote Today
Custom pricing for your barndominium project. Free, no-obligation quote.
Call (800) 555-0217By clicking 'Get My Free Barndo Quote,' you consent to receive calls and text messages from Love Barndominiums and its partners at the number provided, including via automated technology and prerecorded messages. Consent is not a condition of purchase or receiving a quote. Msg & data rates may apply. Msg frequency varies. Reply STOP to opt out. Reply HELP for help.